Search Properties

Birkbeck Road, London

London

£625,000 Offers Over

3 x 1 x
Department:
Sales
Type:
Terraced House
Availability:
For Sale
Receptions:
2
Council Tax Band:
D

Property features

  • Period property with a contemporary finish
  • Generous size bedrooms
  • Two reception rooms
  • Large kitchen diner (newly fitted)
  • Landscape garden
  • Excellent condition throughout
  • New Bathroom
  • Close to Bruce Grove Overground
  • Close to Bruce Castle Park
  • Close to outstanding primary schools

Summary

Nestled on the charming Birkbeck Road in London, this exquisite Victorian mid-terrace house presents a wonderful opportunity for families seeking a comfortable and stylish home. Boasting three generously sized bedrooms, this property is designed to accommodate modern living while retaining its classic charm.

Upon entering, you will find two inviting reception rooms that provide ample space for relaxation and entertaining. The new fitted kitchen is a highlight, offering a contemporary touch and functionality for culinary enthusiasts. The property is in excellent condition throughout, having been meticulously maintained and finished to a high specification.

The landscaped private rear garden is a delightful retreat, perfect for outdoor gatherings or quiet moments in the sun. The spacious bedrooms ensure that everyone in the family has their own sanctuary, making this home ideal for family life.

Conveniently located near Bruce Castle Park, residents can enjoy the beauty of green spaces just a stone's throw away. Additionally, the property is in close proximity to Bruce Grove Overground station, providing easy access to the wider city. Families will appreciate the excellent primary schools nearby, making this location particularly appealing for those with children.

Furthermore, the house offers potential for loft extension, allowing for future growth and customization to suit your family's needs. This Victorian gem on Birkbeck Road is not just a house; it is a perfect family home waiting to be cherished.

Details

Property Description
Nestled on the charming Birkbeck Road in London, this exquisite Victorian mid-terrace house presents a wonderful opportunity for families seeking a comfortable and stylish home. Boasting three generously sized bedrooms, this property is designed to accommodate modern living while retaining its classic charm.

Upon entering, you will find two inviting reception rooms that provide ample space for relaxation and entertaining. The new fitted kitchen is a highlight, offering a contemporary touch and functionality for culinary enthusiasts. The property is in excellent condition throughout, having been meticulously maintained and finished to a high specification.

The landscaped private rear garden is a delightful retreat, perfect for outdoor gatherings or quiet moments in the sun. The spacious bedrooms ensure that everyone in the family has their own sanctuary, making this home ideal for family life.

Conveniently located near Bruce Castle Park, residents can enjoy the beauty of green spaces just a stone's throw away. Additionally, the property is in close proximity to Bruce Grove Overground station, providing easy access to the wider city. Families will appreciate the excellent primary schools nearby, making this location particularly appealing for those with children.

Furthermore, the house offers potential for loft extension, allowing for future growth and customization to suit your family's needs. This Victorian gem on Birkbeck Road is not just a house; it is a perfect family home waiting to be cherished.

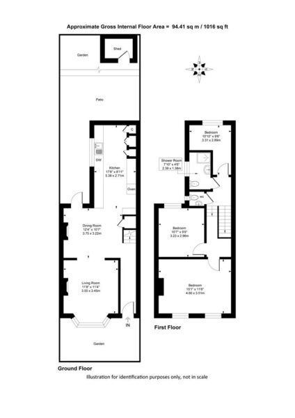
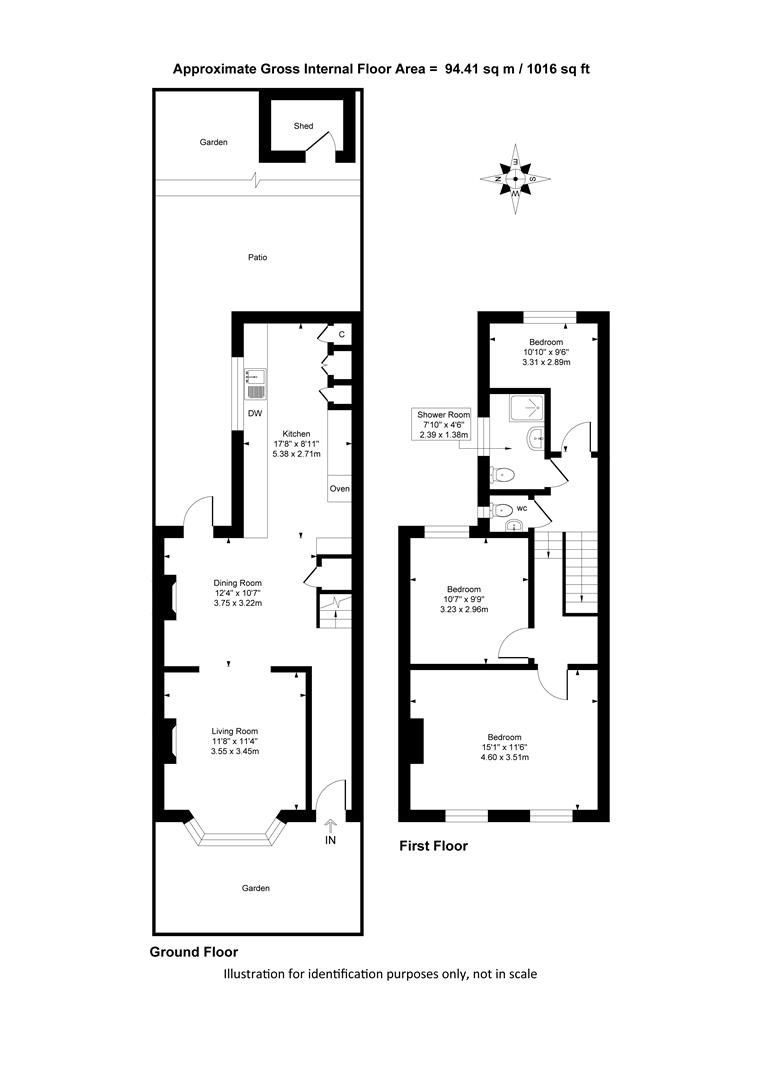
Floor Plans

EPC

Request Further Details

Or arrange a viewing

Recent Blog Posts

Latest news and updates

Bank of England’s Bailey expects interest rates to fall 25th September Uncategorised

Bank of England’s Bailey expects interest rates to fall

The governor of the Bank of England, Andrew Bailey, has said he expects interest rates to fall, albeit gradually, which will be welcome news for thousands of mortgage borrowers. Bailey said he was “very encouraged” by falling inflation and “therefore I do think the path for interest rates will be…

Read More
Mortgage price war hots up as Barclays undercuts Nationwide with new low rate 25th September Uncategorised

Mortgage price war hots up as Barclays undercuts Nationwide with new low rate

Barclays will today launch a range of new mortgage products, including a new lowest home loan rate on the market, just 24 hours after Nationwide released the first sub-3.75% deal. Barclays will today introduce a five-year fix at 3.71% for those buying their home with a 40% deposit. The deal…

Read More
New portal launches inviting estate agents to list properties for free 25th September Uncategorised

New portal launches inviting estate agents to list properties for free

A new property portal called NI Bricks has launched in Northern Ireland. To commemorate the launch, estate agents are being invited to join NI Bricks’ platform with the opportunity to list properties for free for up to three months. Founded in November last year and launched this week, NI Bricks…

Read More