Henningham Road, London
London
£499,995 Offers Over
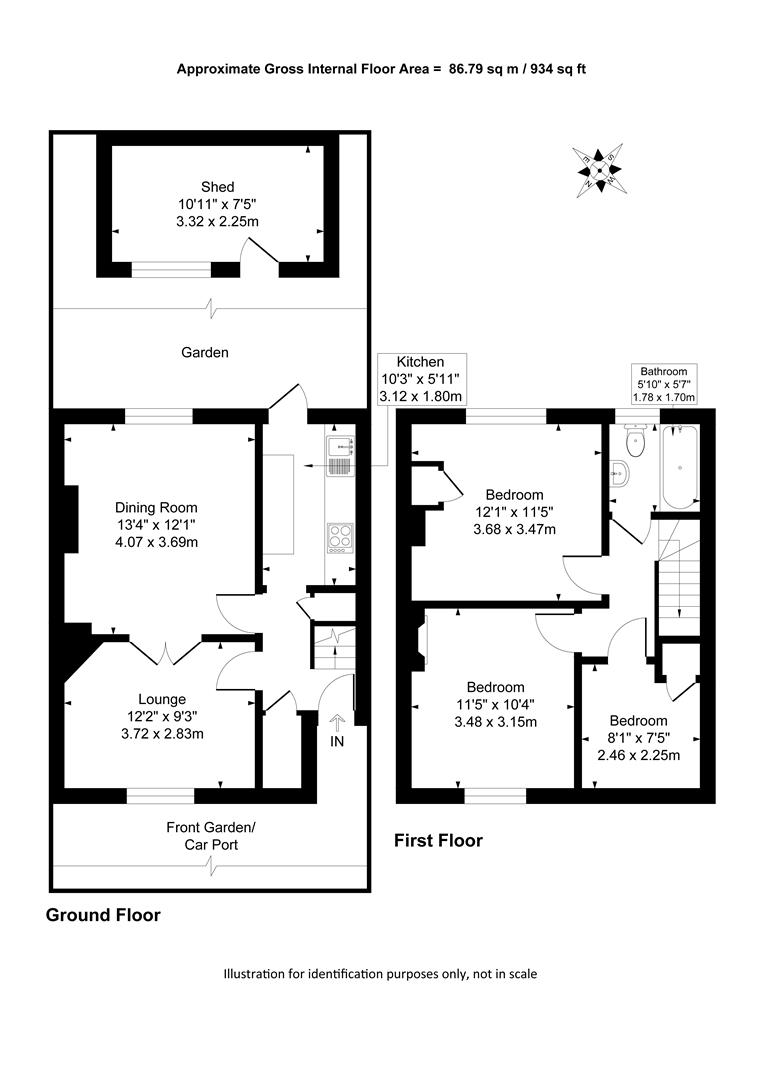
Property features
- Three bedroom Mid-terrace house
- Two receptions rooms with options to be made into a through lounge
- Fitted kitchen
- Suntrap well maintained garden, with large shed that can be converted into a summer house
- Off street parking for 2 cars
- Potential to extend to the rear or go up into the loft (STPP)
- Chain free
- Close to excellant travel links
- Catchment for excellent schools
- Close to Bruce Castle Park
Summary
***************************************£500,000-£525,000************************************Nestled on the charming Henningham Road, this delightful three-bedroom mid-terrace house presents an excellent opportunity for first-time buyers seeking to enter the property market. Spanning an impressive 990 square feet, the home is situated just outside the sought-after Tower Garden estate, providing a peaceful yet convenient living environment.
As you step inside, you will be greeted by a bright and airy atmosphere, enhanced by two spacious reception rooms that offer ample space for relaxation and entertaining. The fitted kitchen is functional and ready for your personal touch, making it the perfect canvas for culinary creativity. The property boasts three generous bedrooms, providing plenty of room for family or guests, along with a loft space that can be transformed to suit your needs.
The upstairs bathroom is well-appointed, and the lovely maintained garden, complete with a large shed, offers a tranquil outdoor retreat for gardening enthusiasts or those who simply wish to enjoy the fresh air. The property also benefits from a two-car driveway, ensuring convenience for residents and visitors alike.
Located on a lovely cul-de-sac road, this home is chain-free and conveniently close to Bruce Grove, with easy access to the Wood Green tube station, making commuting a breeze. Families will appreciate the proximity to excellent primary schools, further enhancing the appeal of this lovely family home.
While some home improvements are needed, this property offers the perfect opportunity to infuse your own style and taste, making it a truly special place to call home. Don’t miss out on this fantastic chance to secure a wonderful property in a desirable location.
Details
Property description
Nestled on the charming Henningham Road, this delightful three-bedroom mid-terrace house presents an excellent opportunity for first-time buyers seeking to enter the property market. Spanning an impressive 990 square feet, the home is situated just outside the sought-after Tower Garden estate, providing a peaceful yet convenient living environment.
As you step inside, you will be greeted by a bright and airy atmosphere, enhanced by two spacious reception rooms that offer ample space for relaxation and entertaining. The fitted kitchen is functional and ready for your personal touch, making it the perfect canvas for culinary creativity. The property boasts three generous bedrooms, providing plenty of room for family or guests, along with a loft space that can be transformed to suit your needs.
The upstairs bathroom is well-appointed, and the lovely maintained garden, complete with a large shed, offers a tranquil outdoor retreat for gardening enthusiasts or those who simply wish to enjoy the fresh air. The property also benefits from a two-car driveway, ensuring convenience for residents and visitors alike.
Located on a lovely cul-de-sac road, this home is chain-free and conveniently close to Bruce Grove, with easy access to the Wood Green tube station, making commuting a breeze. Families will appreciate the proximity to excellent primary schools, further enhancing the appeal of this lovely family home.
While some home improvements are needed, this property offers the perfect opportunity to infuse your own style and taste, making it a truly special place to call home. Don’t miss out on this fantastic chance to secure a wonderful property in a desirable location.