Search Properties

North Avenue, Silver Street Edmonton London

London

£425,000

2 x 1 x
Department:
Sales
Type:
Terraced House
Availability:
For Sale
Receptions:
1
Council Tax Band:
C

Property features

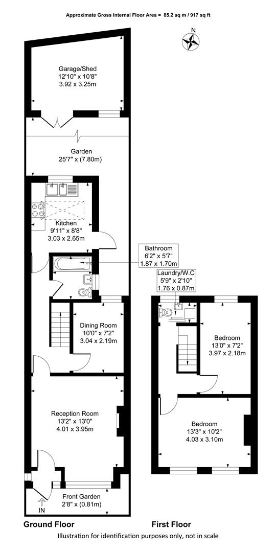
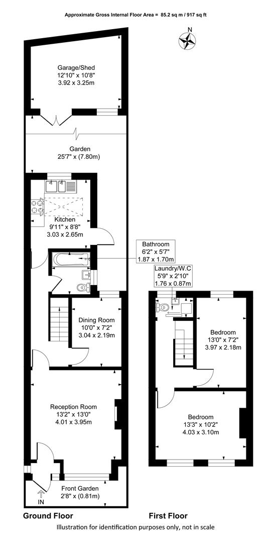
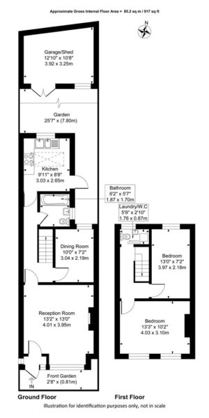
  • Two Bedroom Victorian terrace house
  • Two Reception rooms
  • Fitted Kitchen
  • Private rear garden
  • Summer house
  • Two good size bedrooms
  • Bathroom
  • W/C
  • Close to Silver Street
  • Chain free

Summary

Nestled on North Avenue in London, this charming Victorian terraced house presents an excellent opportunity for those seeking a delightful home in a vibrant area. The property boasts two well-proportioned bedrooms located on the upper floor, providing a peaceful retreat. The ground floor features a bright and airy reception room, which offers the flexibility to serve as a third bedroom if desired, catering to various living arrangements.

One of the standout features of this home is the large summer house situated in the garden, complete with power and a water supply. This versatile space can be transformed into a home office, a creative studio, or simply a relaxing area to enjoy the outdoors.

Conveniently located near Silver Street Station, commuting to central London is a breeze, making this property ideal for professionals and families alike. Additionally, the house is in close proximity to local schools, ensuring that educational needs are easily met.

Offered on a chain-free basis, this Victorian gem is ready for its new owners to move in and make it their own. With its blend of character, modern convenience, and a prime location, this property is not to be missed.

Details

Property Description
Nestled in the sought-after area of Edmonton, North Avenue presents a charming Victorian terraced house that is perfect for those seeking a blend of character and modern convenience. This delightful property boasts two well-proportioned bedrooms and a versatile layout, featuring two reception rooms. One of these rooms can easily serve as a downstairs bedroom, offering flexibility for families or guests.

The house is further enhanced by a spacious summer house in the garden, providing an ideal space for relaxation or a home office. Additionally, there is significant potential to extend into the loft, allowing for further development to suit your needs.

Conveniently located, this property is just a short distance from Silver Street station, making commuting to central London a breeze. Families will appreciate the proximity to local schools and amenities, ensuring that everything you need is within easy reach.

This chain-free property is competitively priced, making it an attractive opportunity for first-time buyers or investors alike. With its charming features and prime location, this Victorian terrace is a must-see for anyone looking to make a home in this vibrant part of London.

Floor Plans

EPC

Request Further Details

Or arrange a viewing

Recent Blog Posts

Latest news and updates

Bank of England’s Bailey expects interest rates to fall 25th September Uncategorised

Bank of England’s Bailey expects interest rates to fall

The governor of the Bank of England, Andrew Bailey, has said he expects interest rates to fall, albeit gradually, which will be welcome news for thousands of mortgage borrowers. Bailey said he was “very encouraged” by falling inflation and “therefore I do think the path for interest rates will be…

Read More
Mortgage price war hots up as Barclays undercuts Nationwide with new low rate 25th September Uncategorised

Mortgage price war hots up as Barclays undercuts Nationwide with new low rate

Barclays will today launch a range of new mortgage products, including a new lowest home loan rate on the market, just 24 hours after Nationwide released the first sub-3.75% deal. Barclays will today introduce a five-year fix at 3.71% for those buying their home with a 40% deposit. The deal…

Read More
New portal launches inviting estate agents to list properties for free 25th September Uncategorised

New portal launches inviting estate agents to list properties for free

A new property portal called NI Bricks has launched in Northern Ireland. To commemorate the launch, estate agents are being invited to join NI Bricks’ platform with the opportunity to list properties for free for up to three months. Founded in November last year and launched this week, NI Bricks…

Read More