Search Properties

Parsonage Lane, Enfield

Enfield

£650,000

3 x 2 x
Department:
Sales
Type:
Semi-Detached House
Availability:
For Sale
Receptions:
2
Council Tax Band:
D

Property features

  • Three bedroom Semi-Detached House
  • Two separate reception rooms
  • Large kitchen diner (heart of the home)
  • Utility room
  • Downstairs bathroom & Upstairs bathroom
  • 80 ft Garden with out building
  • large bedrooms
  • Excellent school catchments
  • Close to Enfield Town Over ground
  • Chain free

Summary

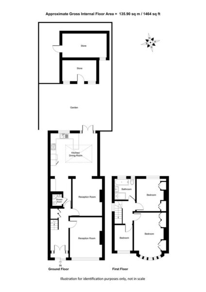
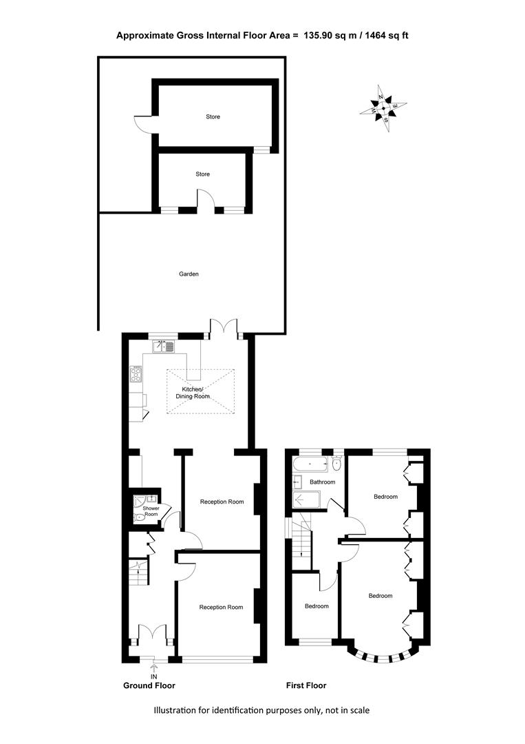
Nestled in the sought-after area of Enfield Town, this charming three-bedroom semi-detached house offers a delightful blend of comfort and potential. Spanning an impressive 1,464 square feet, the property, built in the late 1930s, boasts a bright and airy atmosphere that is sure to appeal to families and professionals alike.

Upon entering, you are greeted by two spacious reception rooms, perfect for entertaining guests or enjoying quiet family evenings. The heart of the home is undoubtedly the remarkable kitchen diner, which provides an inviting space for culinary creativity and family gatherings. The property also features a convenient utility room and a downstairs bathroom, enhancing its practicality for modern living.

Upstairs, you will find generous bedrooms that offer ample space for relaxation, along with a well-appointed family bathroom. The large garden, complete with an outbuilding, presents an excellent opportunity for outdoor enjoyment or potential development, should you wish to extend into the loft.

This residence is situated within excellent school catchment areas, making it an ideal choice for families. Additionally, the property is chain-free, allowing for a smooth and efficient purchase process. With its prime location close to Enfield Town, this home is not only a wonderful place to live but also a smart investment for the future. Don’t miss the chance to make this delightful property your own.

Details

Property Description
Nestled in the sought-after area of Enfield Town, this charming three-bedroom semi-detached house offers a delightful blend of comfort and potential. Spanning an impressive 1,464 square feet, the property, built in the late 1930s, boasts a bright and airy atmosphere that is sure to appeal to families and professionals alike.

Upon entering, you are greeted by two spacious reception rooms, perfect for entertaining guests or enjoying quiet family evenings. The heart of the home is undoubtedly the remarkable kitchen diner, which provides an inviting space for culinary creativity and family gatherings. The property also features a convenient utility room and a downstairs bathroom, enhancing its practicality for modern living.

Upstairs, you will find generous bedrooms that offer ample space for relaxation, along with a well-appointed family bathroom. The large garden, complete with an outbuilding, presents an excellent opportunity for outdoor enjoyment or potential development, should you wish to extend into the loft.

This residence is situated within excellent school catchment areas, making it an ideal choice for families. Additionally, the property is chain-free, allowing for a smooth and efficient purchase process. With its prime location close to Enfield Town, this home is not only a wonderful place to live but also a smart investment for the future. Don’t miss the chance to make this delightful property your own.

Floor Plans

EPC

Request Further Details

Or arrange a viewing

Recent Blog Posts

Latest news and updates

Bank of England’s Bailey expects interest rates to fall 25th September Uncategorised

Bank of England’s Bailey expects interest rates to fall

The governor of the Bank of England, Andrew Bailey, has said he expects interest rates to fall, albeit gradually, which will be welcome news for thousands of mortgage borrowers. Bailey said he was “very encouraged” by falling inflation and “therefore I do think the path for interest rates will be…

Read More
Mortgage price war hots up as Barclays undercuts Nationwide with new low rate 25th September Uncategorised

Mortgage price war hots up as Barclays undercuts Nationwide with new low rate

Barclays will today launch a range of new mortgage products, including a new lowest home loan rate on the market, just 24 hours after Nationwide released the first sub-3.75% deal. Barclays will today introduce a five-year fix at 3.71% for those buying their home with a 40% deposit. The deal…

Read More
New portal launches inviting estate agents to list properties for free 25th September Uncategorised

New portal launches inviting estate agents to list properties for free

A new property portal called NI Bricks has launched in Northern Ireland. To commemorate the launch, estate agents are being invited to join NI Bricks’ platform with the opportunity to list properties for free for up to three months. Founded in November last year and launched this week, NI Bricks…

Read More